在品牌形象塑造与产品展示日益重要的今天,一个精心设计的展厅不仅是商品的陈列空间,更是品牌文化与地域特色的综合表达。净心雨装饰设计公司为内蒙古通辽某羊绒品牌打造的展厅设计,便是这样一件融合了现代美学与草原风情的平面设计佳作。
一、设计理念:从草原到殿堂
该设计的核心灵感源于内蒙古通辽独特的地域文化。设计师深入挖掘了羊绒产品“温暖、纯净、天然”的属性,并将其与草原的辽阔、宁静、生命力相联系。设计并未简单堆砌蒙古包、勒勒车等传统符号,而是通过抽象化的线条、色彩与材质,营造出一种现代而富有诗意的“草原意境”。展厅旨在让访客在步入的瞬间,便能感受到羊绒产品所承载的自然馈赠与匠心精神,实现从“观看产品”到“体验品牌”的升华。
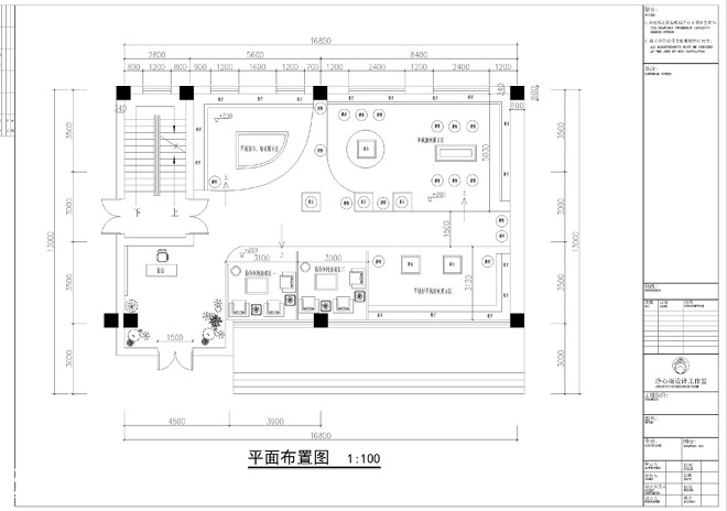
二、平面布局与动线设计
在平面布局上,设计师采用了流畅的弧形动线,模拟了草原河流的自然曲线,引导顾客在展厅内轻松漫步。空间被清晰地划分为几个功能区:
整个布局疏密有致,确保了商业展示效率与艺术体验感的平衡。
三、视觉元素与材质运用
效果图显示,设计师在视觉上主打了低饱和度的中性色彩体系,以米白、浅灰、原木色为主调,局部点缀沙棘黄、苔原绿等源于自然的高雅色彩,完美衬托出羊绒制品本身的质感与色彩。
材质选择上,大量运用了天然材料:
四、灯光与氛围营造
灯光设计是此案的亮点。设计师摒弃了均匀的全局照明,转而采用重点照明与氛围照明相结合的方式。精准的轨道射灯如同阳光,聚焦于每一件羊绒精品,凸显其细腻纹理与卓越品质;而隐藏式的灯带、柔和的壁灯则勾勒出空间轮廓,营造出宁静、温暖、富有高级感的整体氛围,让人仿佛置身于被晨光或暮色笼罩的草原,心境也随之沉静下来。
五、品牌形象的平面整合
在整个空间设计中,品牌的平面视觉元素(如Logo、字体、图形)被巧妙地融入其中。从入口的标识墙到导视系统,从产品标签到背景形象墙,均保持了高度统一的视觉语言。设计师可能提取了羊绒纤维、草原曲线等元素,转化为抽象的图形图案,应用于空间隔断、地毯或装饰面上,使品牌识别无处不在却又含蓄自然。
净心雨装饰设计公司的这套通辽羊绒展厅效果图,成功地将地域文化的灵魂注入现代商业空间。它不仅仅是一张设计蓝图,更是一个关于品牌、自然与生活的美好提案。通过精准的平面规划、克制的视觉表达和深入的情感共鸣设计,它预示着一个能够有效提升品牌价值、深化客户体验的卓越空间。该作品充分体现了设计师在商业空间设计中,对文化深度、功能逻辑与美学高度的综合驾驭能力。
如若转载,请注明出处:http://www.yfpbi.com/product/85.html
更新时间:2026-04-14 17:12:16
PRODUCT